














Located within the tranquil London Yard development on the Isle of Dogs, Frans Hals Court offers a peaceful riverside lifestyle with easy access to the bustling hub of Canary Wharf. This property is part of a sought-after community known for its green spaces, direct Thames views, and secure residential feel.
Property Overview
Location: Frans Hals Court, 87 Amsterdam Road,
London, E14 3UX.
Property Type: Modern Apartment.
Key Features: Private balcony, riverside views, and a
triple-aspect layout that maximizes natural light.
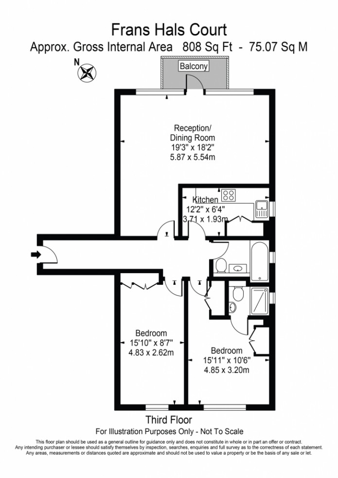
This bright and spacious apartment typically features a
triple-aspect East-to-West orientation, ensuring the
living spaces are bathed in sunlight from morning until evening.
Living Space: An expansive reception room designed for
both relaxation and entertaining, with extra wide windows and doors
leading to a private balcony.
Views: Enjoy direct, unobstructed views of the River Thames and the
iconic O2 Arenaâ??a perfect backdrop for evening drinks or
morning coffee.
Kitchen: A well-proportioned, separate kitchen
featuring an electric hob and a window for natural ventilation, providing
a practical space away from the main living area.
Bedrooms: Generous double bedrooms, with the master
suite tastefully finished.
Frans Hals Court is more than just a building; itâ??s part of a secure, well-managed riverside community.
Security &
Service: Residents benefit from a daytime caretaker, 24-hour security patrols, and lift
access.
Parking: Abundant permit-based residents' parking
is typically available within the complex.
Outdoor Space: Set adjacent to a small riverside beach
and lush communal gardens, offering a quiet escape from the city's
pace.
Situated in Cubitt Town
(E14), the property
balances suburban quiet with urban convenience:
Transport: A short walk to Crossharbour
DLR and Island Gardens DLR stations, providing rapid links to Canary
Wharf (approx.
Lifestyle: Moments away from the Mudchute Park & Farm, as well as the diverse restaurants, bars, and shopping malls of Canary Wharf.
Local Vibes: The area is home to a variety of local favorites, from the historic The Gun pub to various riverside cafes and independent eateries.
Particulars
Leasehold - 984 years (approximately)
Service Charge - £3000 per annum (approximately)
Ground Rent - £40 per annum (fixed for entire lease)
Energy Performance Rating: C
Council Tax Band: E (London Borough of Tower Hamlets
Fees applying to all new tenancies from 1st June 2019
We may charge a tenant any or all of the following when required:
Fees applying to all pre-existing tenancies entered before 1st June 2019
We shall continue to apply the charges within the existing tenancy agreement until 31st May 2020.
Compliance Information:
We are a Member of the Property Ombudsman Limited property redress scheme.
We are a member of the "Client Money Protect" client money protection scheme.
Please contact us for any further details/information
Tel: 020 7538 0102
Email: sales@propertymatters.co.uk
×